12月12日,山東裕龍石化有限公司(簡稱“裕龍石化”)裕龍島煉化一體化項目(一期)渣水處理框架順利完成封頂。

渣水處理框架是該項目最大的單體工程主體結構,共四層,建筑高度29.5米,占地面積1608平方米,本次混凝土澆筑共計507立方米。此次渣水處理框架結構封頂為土建施工的全面完工奠定了堅實基礎。
月初,山東裕龍石化有限公司(簡稱“裕龍石化”)裕龍島煉化一體化項目(一期)煤氣化制氫聯合裝置變電所近日喜迎封頂。
作為煤制氫項目第一個實現主體結構封頂的單體,標志著變電所主體結構施工任務圓滿完成。項目A標段包含煤氣化裝置(煤漿制備、煤漿給料、氣化框架)及合成氣變換裝置(機柜間、變電所、合成氣變換),產品規模為260000Nm?/h,燃料氣200000 Nm3/h,三臺氣化爐兩開一備。
裕龍島煉化一體化項目一期煤制氫采用三臺多噴嘴氣化爐,兩開一備。煤制氫工藝路線是,多噴嘴水煤漿氣化,三段耐硫變換,低溫甲醇洗脫除酸性氣,PSA氫氣提純。產品規模為氫氣260000m?/h,燃料氣200000m?/h。
裕龍島煉化一體化項目(一期)建設2000萬噸/年原油加工能力。煤氣化采用多噴嘴對置式氣化技術。氣化爐內徑3880mm,設計壓力6.5MPa,2開1備。根據生態環境部2020年7月公示的裕龍島煉化一體化項目環評文件,煤制氫工藝路線是,多噴嘴水煤漿氣化,三段耐硫變換,低溫甲醇洗脫除酸性氣,PSA氫氣提純。
裝置設計公稱規模為純度99.9%的氫氣22萬標米3/時,折合純氫11.4萬噸/年。同時生產燃料氣(折合標油)42.6 萬噸/年。
2020年7月山東裕龍石化與兗礦國拓和華東理工大學簽訂多噴嘴對置式煤氣化技術許可合同。
山東裕龍石化項目(一期)規劃
聚丙烯:
2套40萬噸/年聚丙烯裝置,選用ST II 工藝;
2套40萬噸/年聚丙烯裝置,選用Novolen工藝;
1套30萬噸/年聚丙烯裝置,選用Horizone工藝。
聚乙烯:
1套20萬噸/年LDPE裝置,
110萬噸/年HDPE裝置,
60萬噸/年LDPE/EVA裝置

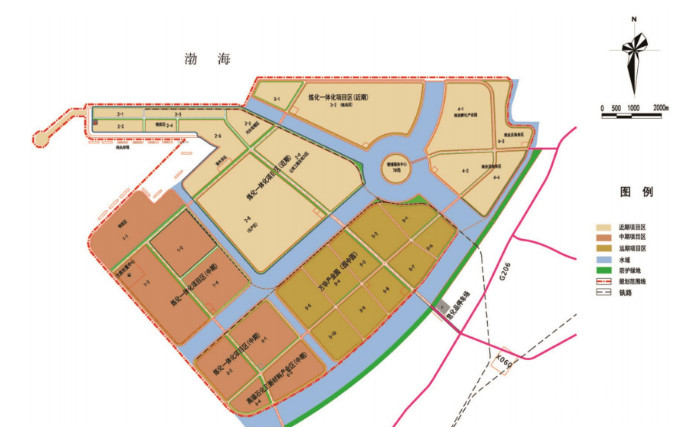
裕龍島煉化一體化項目(一期)位于山東省煙臺市龍口裕龍島2#、3#島,項目建設投資約1274億元,建設周期24個月。
項目擬建設2000萬噸/年原油加工能力,主要配置1000萬噸/年常壓蒸餾裝置和1000萬噸/年常減壓蒸餾裝置、輕烴回收裝置、脫硫脫硫醇裝置、渣油加氫裝置等煉油工藝裝置,乙烯、裂解汽油加氫、芳烴抽提、丁二烯抽提、EVA/LDPE等化工工藝裝置,配套公用工程、輔助設施和海水淡化、海水取水及排水等設施。